喜爱面积大的自建房别墅,但自家的宅基地有不尽人意,建出来怕显小气,丢了面子,难道小土地真的就不能建满意的别墅了吗?那可不一定,只要设计好,再小的宅基地都能盖豪宅。今天小编带来4款农村90平就能建的一层房子设计图。
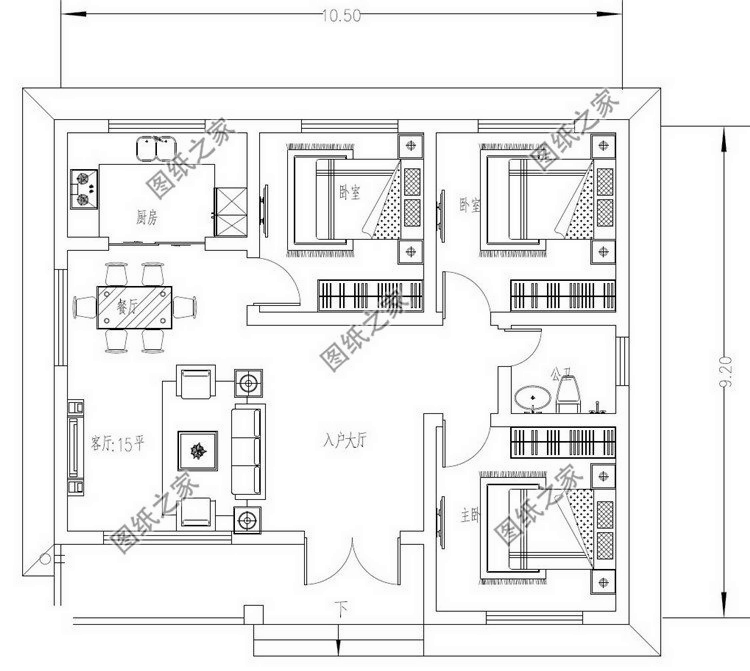
第一款:现代简约一层自建房效果图,主体造价8万开间:10.5m
进深:9.2m
占地面积:91.036平方米左右
户型:入户大厅、客厅、卧室x3、厨房、餐厅
这款现代式简约的农村一层三间平房设计图,入户设大客厅,建筑装饰简洁,蓝色屋顶,白色外墙漆,美观又大气。


开间:10.6m
进深:7.9.m
占地面积:79.478平方米左右
户型:客厅、厨房、餐厅、卧室x2、卫生间、储藏间(也可以预留楼梯口,后期加建)
这款平屋顶自建房图纸,预留楼梯,以后可以加盖二层,整体配色素净淡雅。室内布局很实用,两式两厅一卫,农村一般的家庭都很适用,楼梯处可以预留后期加建或者做储藏间。


开间:11.3m
进深:8.3m
占地面积:90平方米
户型:厨房、卧室、客厅、主卧室、卫生间、杂物间、餐厅
这款非常适合宅基地面积小的,户型方正,外观简洁,线条性强,适合老人养老居住使用。



进深:7.76m
开间:10.76m
占地面积:80平方米左右
一层户型:走廊、客厅、餐厅、厨房、卧室、卫生间、车库
阁楼户型:棋牌室、储藏间、卧室x2、卫生间
这款式乡村一层带阁楼自建别墅设计图,带车库,外观非常简洁,屋顶采用的是传统的坡屋顶,建筑的层次感更分明,舒适感更全面。




以上就是小编推荐适合90平小户型宅基地建设的一层别墅设计图和户型图,有需要具体施工图纸的可以搜索图纸之家查找。
转载请注明出自别墅设计网:https://tuzhizhijia.com/ 千套别墅设计带别墅图片

想建房?却找不到满意的图纸?
不用愁!
←←扫一扫左侧二维码加微信,
给您推荐合适的款式,我们有各种尺寸/样式的图纸可选,拿到即可施工,还可根据宅基地1对1定制出图,100%让您用上满意的图纸!